Der Kaminofen Poseidon aus der Serie SEE (Spartherm Excellent Edition) des deutschen Premiumherstellers Spartherm besticht durch sein spannungsvolles, perfekt proportioniertes Design in Kombination mit einem Feuerraum von beeindruckender Größe und modernster Feuerungstechnik dank des verbauten Kamineinsatzes aus der Spartherm Premium Produktlinie. Seine ausdrucksstarke Formensprache in Verbindung mit den edlen Materialien und der großformatigen, rahmenlose Panorama-Verglasung, welche einen ungehinderten Blick auf das spektakuläre Flammenspiel im Inneren des Kaminofens freigibt, machen den Poseidon zu einem ganz besonderen Vertreter seiner Art und zu einem aufsehenerregenden und gleichermaßen funktionellen Bestandteil Ihrer individuellen Raumgestaltung. Stolze 3 mm Materialstärke und die hochschiebbare Tür unterstreichen den imposanten Gesamteindruck des Poseidon und lassen den Kaminofen wie eine exklusive individuell errichtete Kaminanlage anmuten. Der Aufbau erfolgt ganz einfach mit der im Lieferumfang befindlichen Step-by-Step-Montageanleitung.
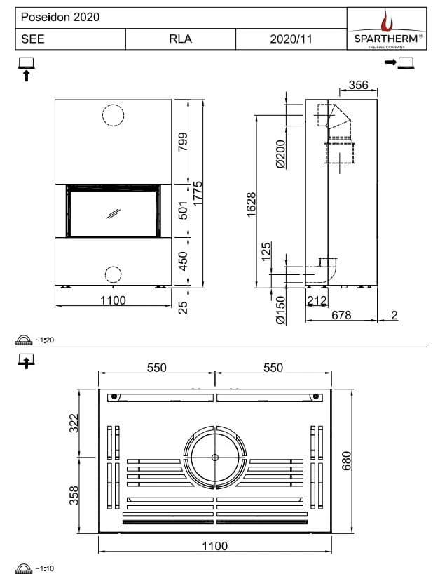
Der Rauchrohranschluss ist ganz flexibel sowohl oben als auch an der Rückseite möglich.
Der raumluftabhängige Kaminofen ist in zahlreichen eleganten Farben oder als Ausführung in Rohstahl jeweils als wandbündiges Modell oder als freistehendes Modell mit in Korpusfarbe lackierter Rückwand bei Kaminprofi24 erhältlich.
Merkmale
| Nennwärmeleistung | 9,5 kW |
| Abmessungen (HxBxT) | 177,5 x 110,0 x 68,0 cm |
| Gewicht | ca. 506 kg |
| Grundform | eckig |
| Abmessungen Feuerraumtür (HxB) | 48,9 x 87,6 cm |
| Material | Stahl |
| Rauchrohranschluss (Ø) | 200 mm |
| Brennstoffe | Holz (bis 25 cm Scheitlänge) |
Highlights
Großformatige, rahmenlose Panoramaverglasung
Scheibenspülsystem mit vorgewärmter Sekundärluft
Externe Frischluftzufuhr
Großer Feuerraum
Dezenter, perfekt in das Design integrierter Türgriff
Türfunktion hochschiebbar, selbstschließend
Hervorragendes Abbrandverhalten und Flammenbild durch modernste Feuerungstechnik
Erfüllt alle Anforderungen 1. und 2. BImSchV (zusätzlicher Feinstaubfilter nicht erforderlich)
Einfacher Aufbau dank im Lieferumfang befindlicher Step-by-Step-Montageanleitung
Elektronische Abbrandsteuerung per App (optional, mit S-Thermatik Neo, sh. Zubehör)
Auch mit schwarzer Feuerraumauskleidung erhältlich (optional, sh. Zubehör)
Technische Details
| Wärmeleistungsbereich min./max. | 6,7 / 12,4 kW |
| Wirkungsgrad | > 80 % |
| Raumheizvermögen | > 186 m³ |
| Für 24h Dauerbetrieb geeignet | ja |
| Frischluftstutzen (Ø) | 150 mm |
| Rauchrohrstutzen |
|
| Höhe bis Rohrmitte | 162,8 cm (Abgang hinten) |
| Höhe bis Stutzen | 169,6 cm (Abgang oben) |
| Frischluftstutzen |
|
| Höhe bis Rohrmitte | 12,5 cm (Abgang hinten) |
| Abstand hinten bis Rohrmitte | 32,2 cm (Abgang unten) |
| Abstand zu brennbaren Materialien |
|
| Seitlich | 3 cm |
| Hinten | 0 cm |
| Vorn | 175 cm |
Daten für den Schornsteinfeger nach DIN EN 13384
| Abgasmassenstrom | 9 g/s |
| Abgastemperatur am Abgasstutzen | 272 °C |
| Erforderlicher Förderdruck | 0,12 mbar |
| BImSchV Stufe 1 und 2 | Erfüllt |
Weiterführende Informationen
Leistungserklärung
Montageanleitung SEE Kaminöfen
Montageanleitung Premium Kamineinsätze
HINWEIS: Sperrgut mit Speditionsversand. Weitere Informationen hier.
Technische Änderungen und Irrtümer vorbehalten

























Rezensionen
Es gibt noch keine Rezensionen.